เบอร์โทรโครงการ:
เว็บไซต์โครงการ:
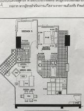
| ขนาดห้อง | 96.0 ตารางเมตร |
| ราคาต่อตารางเมตร | 104166.67 บาท/ตารางเมตร |
| ชั้น | 16 |
| โครงการ | เบ็ล แกรนด์ พระราม 9 |





เบอร์โทรโครงการ:
เว็บไซต์โครงการ:
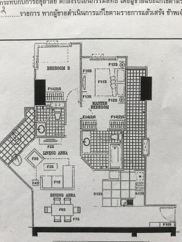
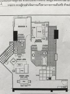
ชื่ออาคาร/ตึก: เบ็ล แกรนด์ พระราม 9
จำนวนชั้น:
จำนวนห้อง:
รูปอาคาร
ให้เช่า คอนโด เบ็ล แกรนด์ พระราม 9 Belle Grand พระราม 9 48 ตรม.
ขาย คอนโด เบ็ล แกรนด์ พระราม 9 Belle Grand พระราม 9 172.86 ตรม.
ขาย คอนโดหรู Belle Grand Rama 9 คอนโดพร้อมอยู่ใกล้ MRT พระราม 9 (วิวสระว่ายน้ำและเมือง)




