ราคา 140000.00 บาท
รายละเอียด
ขนาดห้อง 27.0 ตารางเมตร
ราคาต่อตารางเมตร 6777.00 บาท/ตารางเมตร
โครงการ ทัวมาลีน (ไลท์) สาธร - ตากสิน

สุภัทรา บูรณสถิตนนท์
0851394750
2013-09-12 00:00:00.0
เลขที่ประกาศ: 90
รายละเอียดเพิ่มเติม
ขายดาว์นคอนโด ทัวมาลีน(ไลท์) สาธร-ตากสิน ห่างจากสถานีรถไฟฟ้ากรุงธนบุรี 200 เมตร
ขายดาว์นราคา 183,000 บาท
( รวมค่าจอง 10,000 บาท, ค่าทำสัญญา 20,000 บาท และค่าผ่อนดาว์น 9 งวด 53,100 บาท (งวดละ 5,900 บาท)
(ยังไม่รวมค่าโอนและส่วนกลางค่ะ)
ราคาเต็ม 1,971,000 บาท ราคา/ตร.ม. 73,000 บาท
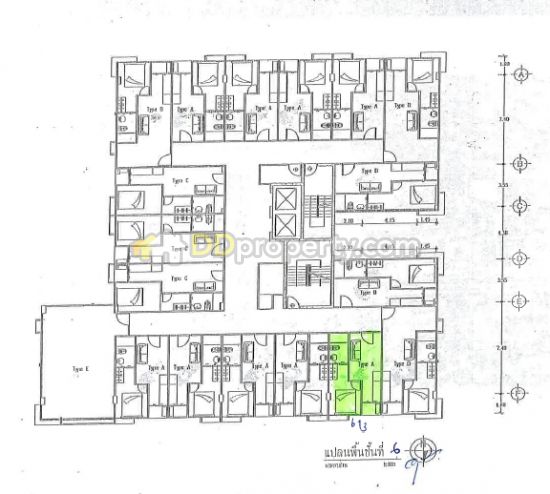
คอนโดความสูง 8 ชั้น ห้องอยู่ชั้น 6 เลขที่ห้อง 613 อยู่ทางทิศใต้
ขนาดห้อง 27 ตร.ม. 1 ห้องนอน 1 ห้องน้ำ (แยกส่วนเปียกและแห้ง)
ผู้ขายรับผิดชอบค่าเปลี่ยนสัญญา ให้ค่ะ
ห้องตกแต่งเรียบร้อย เฟอร์นิเจอร์ครบชุด แบ่งสัดส่วนพื้นที่การใช้สอยอย่างลงตัว ตกแต่งสวยมากค่ะ
พร้อมของแถม ดังนี้
1. เตียง 5 ฟุต
2. ตู้เสื้อผ้า
3. ชุดครัว Built in
4. โต๊ะวาง TV
5. TV LCD 32 นิ้ว
6. โซฟา 2 ที่นั่ง
7. ตู้เย็น
8. เครื่องปรับอากาศ ขนาด 9,000 BTU จำนวน 2 เครื่อง
9. เตาไฟฟ้า
10. Hood (ตู้ดูดควัน)
11. Wallpaper ทั้งห้อง

สนใจติดต่อ : คุณสุภัทรา บูรณสถิตนนท์ โทร 085-1394750 e-mail: jojiparadise69@hotmail.com
คุณประธาน เตียรถ์เจริญกุล โทร 085-0482471, 086-9097839 e-mail: etanoo@hotmail.com
คุณสมบัติ

รายละเอียดโครงการของประกาศนี้

HIGHLIGHT PROPERTY
ที่ตั้ง:
วันที่เริ่มโครงการ:
จำนวนอาคาร:
0
พื้นที่โครงการ:
ตร.วา
จำนวนชั้น:
ชั้น
จำนวนห้อง:
ห้อง
ชื่อบริษัทเจ้าของโครงการ:

เบอร์โทรโครงการ:

เว็บไซต์โครงการ:

รายละเอียดเพิ่มเติม:
ขายดาว์นคอนโด ทัวมาลีน(ไลท์) สาธร-ตากสิน - คอนโด ขายดาวน์
ทัวมาลีน (ไลท์) สาธร - ตากสิน

รายละเอียดอาคาร 0 อาคาร

รูปแบบห้อง 0 แบบ

รายชื่อประกาศขายหรือเช่าทั้งหมดของโครงการนี้ 4 ประกาศ

ขายดาว์นคอนโด ทัวมาลีน(ไลท์) สาธร-ตากสิน - คอนโด ขายดาวน์

เลขที่: 90
2013-09-12 00:00:00.0
Add to wishlist

ทัวมาลีน (ไลท์) สาธร - ตากสิน

ขนาดพื้นที่ 27.0 ตารางเมตร

สุภัทรา บูรณสถิตนนท์

0851394750

ขาย 140000.00 บาท
HIGHLIGHT PROPERTY
รายการประกาศที่ดูล่าสุด (Recent Advertise List)
ขายดาว์นคอนโด ทัวมาลีน(ไลท์) สาธร-ตากสิน - คอนโด ขายดาวน์
ขาย 140000.00 บาท
ขายคอนโด ทำเลดีที่สุดในโครงการ คอนโดเลต 624 ลาดพร้าว ด้านหลังวิวค
ขาย 1320000.00 บาท
ขายดาวน์คอนโด ศุภาลัย เอกมัย ทองหล่อ
ขาย 580000.00 บาท
ขายคอนโดแฟมมิลี่เฮ้าส์ - เอวาคัส รามอินทรา 123
ขาย 2650000.00 บาท
ขายถูก คอนโด Ivy Ratchada ใกล้ MRT สุทธิสาร 150 ม. ใจกลางรัชดา ทำเลทอง
ขาย 1990000.00 บาท
ขายดาวน์ ถูก คอนโด ศุภาลัย เอกมัย- ทองหล่อ Executive Suite ขนาด 55.5 ชั้น 8 ห้อง ES0811(ถูกกว่าซื้อกับโครงการ 160,000 บาท ) - คอนโด ขายดาวน์
ขาย 565300.00 บาท
clear